

ArchiCAD kennenlernen
ID-Nr:
340
Dauer:
ca. 2h
Beschreibung:
Modellieren Sie ein Beispielprojekt in der führenden BIM-Software ArchiCAD und lernen Sie deren Konzept kennen.
Laden Sie die folgende pln-Datei herunter, um die Übung gemäss untenstehendem Beschrieb durchführen zu können.
Falls Sie ArchiCAD noch nicht installiert haben, können Sie hier eine Demoversion von ArchiCAD herunterladen.
Einleitung
Schnupperkurs für CAD Ein- und Umsteiger
Projektvorstellung
ArchiCAD Arbeitsplatz
Menüleiste
Liste der verschiedenen Menüs
Tableiste
In Tabs organisierte, geöffnete Projektsichten
Werkzeuginfofenster
Kurzüberblick über das im Moment ausgewählte Konstruktionselement
Werkzeugkasten
Liste der Werkzeuge:
- Doppelklicken: Werkzeugeinstellungen
- Klick auf Pfeil: Zeigt zugehörige Favoriten an
Koordinatenfenster
Zeigt die genaue Position des Cursors, X-,Y- und Z- Koordinaten, den Radius und den Winkel
Kontrollfenster
Zeichenhilfen für die tägliche Arbeit
Navigator
Zeigt den Projektinhalt an
Das Deckenwerkzeug
Fundamentplatte
Mit dem Deckenwerkzeug werden Sie die quadratische Fundamentplatte zeichnen.
Das 3D-Fenster
Navigation im 3D-Fenster
Im 3D-Fenster können Sie das Modell beliebig drehen und von allen Seiten betrachten.
Tipp
- Falls die Decke nicht oder nicht vollständig zu sehen ist, drücken Sie die Taste 0, um die Anzeige zu optimieren.
- Mit der ESC-Taste verlassen Sie den 3D Bewegungsmodus (Orbit). Nun ist der 3D-Bearbeitungsmodus automatisch aktiv.
Widerrufen / Abbrechen, Aktivieren und Löschen
Widerrufen / Abbrechen
Falls etwas nicht Ihren Vorstellungen entspricht, können Sie jederzeit Arbeitsschritte Widerrufen bzw. Wiederausführen...
Im Menü Bearbeiten können Sie Arbeitsschritte widerrufen und wiederausführen.
Um einen Konstruktions-Vorgang abzubrechen, verwenden Sie die ESC-Taste.
Aktivieren und Löschen
Wenn Sie Elemente bearbeiten möchten, müssen Sie diese zuerst aktivieren. Das Aktivieren kann z.B. mit dem Pfeilwerkzeug durchgeführt werden.
Vorgehen:
- Pfeilwerkzeug einmal anklicken.
- Element (z.B. Decke) an einer Kante, Ecke oder Fläche anklicken. Es erscheinen Aktivierungspunkte. Nun kann das Element bearbeitet oder gelöscht werden (Delete-Taste).
Hinweis
In ArchiCAD arbeiten Sie mit realen Dimensionen, d. h. 1m = 1m. Der Massstab ist für den Ausdruck und gewisse Darstellungen relevant. Für diese Aufgabe können Sie den Massstab auf 1:100 eingestellt lassen.
Das Wandwerkzeug
Aussenwände
Zeichnen Sie die Aussenwände des Gebäudes direkt im 3D-Fenster.
Vorgehen:
- Wandwerkzeug doppelklicken
- Wandeinstellungen:
- Wandoberkante verknüpft mit 1. OG
- Struktur: Standard
- Baustoff: Allgemein, Konstruktion
- Wanddicke: 0.30
- Referenzlinie: Aussen
- Oberflächen: Holz Schalung, natur, liegend und Verputz, glatt, weiss (Verkettung darf nicht aktiv sein)
- Sie können bei der Oberfläche die Suchfunktion nutzen
- Ebene 010 Aussenwände
- Mit OK bestätigen
Innenwände
Als nächstes werden Sie zurück in den Grundriss wechseln (Tab 0. EG) und eine Innenwand zeichnen. Stellen Sie zunächst das Wandwerkzeug neu ein...
Vorgehen:
- Wandwerkzeug doppelklicken
- Wandeinstellungen wie abgebildet vornehmen:
- Wandoberkante: Verknüpft mit 1. OG
- Struktur: Standard
- Baustoff: Allgemein, Konstruktion
- Wanddicke : 0.20
- Referenzlinie: Aussen
- Oberflächen: Beton, Sichtbeton Löcher
(mit Klammer Materialien zusammenfassen) - Ebeneneinstellung: 015 Innenwände
- OK-Button
Ebenen sind CAD-spezifische Organisationsmöglichkeiten für alle Elemente. Ebenen können bei Bedarf ausgeblendet und / oder geschützt werden.
- Cursor ins Rauminnere bewegen, so dass die blauen Abstandslinien erscheinen (nicht klicken)
- Tabtaste drücken bis der untere Wert aktiv wird und 4.20 eingeben
- Tabtaste drücken bis der linke Wert aktiv wird und 1.60 eingeben
- Enter-Taste
- Länge der Innenwand bestimmen: Maus nach rechts ziehen (Hilfslinie) und den Wert 3.20 eingeben, mit Enter bestätigen
- Gehen Sie ins 3D-Tab zur Kontrolle
Das Fensterwerkzeug
Gehen Sie zurück in den Grundriss, indem Sie in der Tab-Leiste auf 0. EG klicken. Nach einem Doppelklick auf das Fensterwerkzeug können Sie einen Fenstertyp aus der ArchiCAD-Bibliothek wählen und die Parameter individuell einstellen...
Das Eckfensterwerkzeug
Eckfenster einsetzen
Sie können nun im 3D-Fenster das ausgewählte und eingestellte Fenster in die Wand einsetzen.
Vorgehen:
- In der gewünschten Ecknähe auf die Wand klicken.
- Für Anschlagsrichtung (blauer Pfeil) mit dem Cursor in die Innenseite (links oder rechts) fahren.
- Mit Klick wird das Eckfenster platziert.
Fenster können in ArchiCAD nur in Kombination mit einer Wand verwendet werden. Sie liegen immer auch auf derselben Ebene wie die Wand.
Längenänderung des Fensters im Grundriss vornehmen
Türwerkzeug
Nach einem Doppelklick auf das Türwerkzeug können Sie eine Türe aus der ArchiCAD Bibliothek wählen und individuell einstellen...
Vorgehen:
- Türwerkzeug doppelklicken
- Ordner: Eingangstüren
- Türtyp: Eingangstür 01 1-FI
- Vorschau und Positionierung:
- Türbreite: 1.00
- Türhöhe: 2.40
- Anker: Brüstung/Schwelle zu Geschoss 0
- Brüstungshöhe: 0.00
- Ankerpunkt: Seite 2
- Mit der Pfeiltaste bis zum Register Modelleigenschaften gehen
- Türblatt: Farbe blau
- OK-Button
Türe einsetzen
Sie können nun die ausgewählte und eingestellte Türe in die Wand einsetzen. Türen können gleich wie Fenster nur in Kombination mit einer Wand verwendet werden.
Vorgehen:
- Cursor auf die obere Wand legen (nicht klicken), die Abstandshilfen erscheinen
- Mit Tabtaste linkes Abstandsmass auswählen und über Tastatur 0.40 eingeben und mit Enter bestätigen.
- Sonne mit Öffnungsrichtungspfeilen erscheint, Maus nach unten bewegen (Öffnungspfeil blau)
- Durch Klicken wird die Türe platziert.
Das Treppen- und Geländerwerkzeug
Treppeneinstellungen
ArchiCAD bietet ein integriertes Treppenwerkzeug. Mit diesem lassen sich diverse Treppentypen und Treppeneinstellungen einfach definieren. Für dieses Projekt verwenden Sie eine vordefinierte Standardtreppe, welche mit individuellen Parametern optimal eingestellt wird.
Geometrie-Einstellungen:
- Verknüpfen Sie die Treppe mit dem Geschoss darüber.
- Wählen Sie Abschluss mit Setzstufe.
- Prüfen Sie, dass die Auftrittstiefe Flexibel ist.
- Definieren Sie dann die Regeln:
- Steigung min. 0.15 und max. 0.20
- Auftritt min. 0.21 und max. 0.24
- 2S+A min. 0.60 und max. 0.65
- Geben Sie die Laufbreite ein: 0.80
- Geben Sie die Stufenanzahl ein: 15
Treppenkörper:
Gehen Sie auf Lauf - Kragarm ins Register Kragarm Komponenten-Einstellungen / Masse und geben Sie die Werte gemäss Screenshot ein.
Wählen Sie den Baustoff Holz.
Im Register Einspannung verkleinern Sie den Bereich auf 15cm.
Bestätigen Sie mit OK.
Das Markierungsrahmenwerkzeug
Teilbereiche im 3D-Fenster anzeigen lassen...
Mit dem Markierungsrahmenwerkzeug können Sie die Bauteile im 3D-Fenster eingrenzen.
Durch Drücken der ESC-Taste lässt sich der Rahmen im Grundriss wieder löschen.
Arbeitsmethodik
Bauteile kopieren
Da das Erdgeschoss grösstenteils dem Aufbau im Obergeschoss entspricht, ist es sinnvoll, die Bauteile aus dem EG ins OG zu kopieren...
Hinweis
In der Demoversion funktioniert dieser Befehl nicht. Sie können mit Hilfe der Transparentpause das Geschoss neu zeichnen.
Vorgehen:
- Wechseln Sie wieder in das Erdgeschoss, indem Sie in der Tableiste auf 0. EG klicken.
- Wandwerkzeug auswählen (1x anklicken)
- Menü Bearbeiten / Alle Wände aktivieren
Diese Funktion bezieht sich immer auf das ausgewählte Werkzeug, d.h. wenn Sie alle Fenster aktivieren möchten, wechseln Sie auf das Fensterwerkzeug. Anschliessend steht im Menü Bearbeiten / Alle Fenster aktivieren.
- Menü Bearbeiten / Kopieren
- Anschliessend in das OG wechseln…
Falls Ihnen für den Geschosswechsel der Weg über den Navigator zu umständlich ist, können Sie für jeden Befehl auch ein Tastatur-kürzel verwenden:
- Ein Geschoss höher: Ctrl + 6
- Ein Geschoss tiefer: Ctrl + 5
Für Mac OS: Ctrl = Cmd-Taste - Menü Bearbeiten / Einfügen
Die aus der Zwischenablage eingesetzten Elemente werden zunächst in einem Markierungsrahmen dargestellt. Sie hätten nun noch die Möglichkeit, die eingesetzten Elemente zu verschieben. ArchiCAD setzt die Elemente immer am Original-Standort ein, dies ist normalerweise auch sinnvoll.
- Wenn Sie das Einsetzen bestätigen möchten, reicht ein Mausklick ausserhalb des Markierungsrahmens.
- Kontrolle im 3D-Fenster.
Bodenplatte Obergeschoss
Decke über EG
Momentan fehlt noch die Bodenplatte OG bzw. die Decke über dem EG. Sie werden diese nun neu zeichnen und dabei die Treppenaussparung berücksichtigen....
Vorgehen:
- Deckenwerkzeug aktivieren (1x anklicken)
- Im Infofenster die Geometriemethode Rechteck auswählen
- Zwei sich gegenüberliegende Gebäudeinnenecken anklicken, um eine neue Decke zu erstellen
(siehe Abbildung rechts; 3.1, 3.2) - Die soeben erstellte Decke aktivieren, indem Sie bei gedrückter SHIFT-Taste 1x auf die Decke klicken (Aktivierungspunkte erscheinen)
- Zwei gegenüberliegende Eckpunkte der Treppe anklicken (5.1, 5.2) um eine Deckenaussparung vorzunehmen
- ESC-Taste drücken, um die Aktivierung wieder aufzuheben
- Kontrolle im 3D-Fenster (Allgemeine Axonometrie).
Anpassungen im Obergeschoss
Fenster bearbeiten
Im Obergeschoss müssen noch einige Anpassungsaufgaben vorgenommen werden. Zunächst werden Sie die Fenster bearbeiten.
Vorgehen:
- Pfeilwerkzeug wählen
- Im 3D-Fenster das Eckfenster durch Anklicken aktivieren
- Auf einen der unteren inneren Aktivierungpunkte klicken und aus der Pet-Palette Vertikal strecken auswählen
- Die Höhe im Eingabetracker auf 1.00 stellen und mit Enter bestätigen.
- Eingangstüre aktivieren und löschen (DEL-Taste)
- Im OG-Grundriss bei gedrückter ALT-Taste (Pipette) auf einen Eckpunkt des Ostfensters klicken und somit die Werkzeugeinstellungen übernehmen
- Im Infofenster den Ankerpunkt kontrollieren (Seite 2)
- Breite auf 1.00 ändern
- Cursor auf obere linke Aussenecke legen und über die Tastatur X 0.40 Enter eingeben. Öffnungsrichtung angeben und mit Klick das Fenster platzieren.
Innenwände und Türen im Obergeschoss
Sie werden im Obergeschoss die bestehende Innenwand verlängern, eine neue Wand zeichnen sowie zwei Innentüren einsetzen.
- Auf Aussenkante der Ostaussenwand klicken.
- Die beiden oberen Schritte für die Anpassung an Westwand wiederholen und Wand deaktivieren mit ESC-Taste.
- Wandwerkzeug aktivieren und im Infofenster auf Konstruktionsmethode zentriert umstellen.
- Wand wie abgebildet mit zwei Mausklicks zeichnen (in der Mitte der Wände existieren Fangpunkte)
Vorgehen Innentüren:
- Türwerkzeug doppelklicken und wie folgt einstellen:
- Ordner: 4.02 Innentüren
- Türtyp: Blockfutter
- Ankerpunkt: Seite 1
- Türbreite: 0.87 m
- Türhöhe: 2.035 m
- Cursor auf Schnittpunkt (innen) von West- und Innenwand legen (nicht klicken!)
- Türen in der Innenwand platzieren gemäss Abbildung oben:
- 1. Türe: X 0.10 ENTER-Taste
- 2.Türe: X 5.43 ENTER-Taste
Das Schnittwerkzeug
Schnitte und Ansichten
Da das Projekt dreidimensional aufgebaut wurde, können Sie jederzeit an einem beliebigen Ort einen Schnitt definieren.
Der Schnitt ist mit dem 3D-Modell verbunden, d.h. wenn ein Bauteil verändert wird, sind auch die Schnitte und Ansichten nachgeführt. Für gewisse Aufgaben ist es sinnvoll, Anpassungen direkt im Schnitt durchzuführen. Umgekehrt wird dann der Grundriss automatisch aktualisiert.
Beachten Sie, dass Ansichten ebenfalls mit dem Ansichtwerkzeug erstellt werden. Sie können u. a. bei der Modelldarstellung Oberfächenfarbe, Schlagschatten, etc. einschalten um plastischere Darstellungen zu erhalten.
Das Flachdach (optional)
Dachgeschoss erstellen
Sie werden nun ein weiteres Geschoss (DG) anlegen und ein Flachdach erstellen.
Vorgehen:
- Gehen Sie in den Grundriss (Tab öffnen).
- Menü Verwaltung / Geschosse / Geschosseinstellungen
- OG auswählen und auf Darüber einfügen klicken
- Das neue Geschoss AUFSICHT nennen und die Geschosshöhe auf 1.00 festlegen
- Im neuen Geschoss die Transparentpause einblenden (Menü Optionen / Transparentpause) und Unter dem aktuellen Geschoss als Transparentpause definieren.
- Mit der Geometriemethode Rechteck vier Aussenwände zeichnen (Einstellungen im Wandwerkzeug wie nebenan abgebildet!)
- Mit dem Deckenwerkzeug das Flachdach erstellen. Verwenden Sie die Geometriemethode Rechteck und klicken Sie zwei gegenüberliegende Wandinnenecken an.
- Deckeneinstellungen:
- Deckenstärke: 0.30
- Abstand zu Ursprungsgeschoss: 0.00
- Modell (Oberfläche oben): Natur, Dachbegrünung
- In der Tableiste auf den Schnitt S/01 klicken. Der Schnitt ist bereits angepasst...
Das Objektwerkzeug
Bibliothekselemente
Mit dem Objektwerkzeug haben Sie Zugang zu Hunderten von Bibliothekselementen. Für Ihr Projekt nutzen Sie einige Möbel aus der ArchiCAD-Bibliothek.
Die Einfrontenküche beispielsweise kann mit dem Element Konzeptküche aus dem Ordner 1.07 Küche erstellt werden.
Schalten Sie auf den Typ Gerade um und aktivieren/deaktivieren Sie Hochschränke und Zubehör nach Bedarf.
Über den mittleren, roten Hotspot können die Elemente an den korrekten Ort verschoben werden.
Mit dem Pfeilwerkzeug können Sie z.B. an einer Ecke Objekte aktivieren.
Vom zentralen Aktivierungspunkt aus lassen sich die meisten Objekte auch sehr einfach verschieben.
Kontrollieren Sie den Wohnbereich mit einer Perspektive.
Setzen Sie eine Kamera im Innenraum ein (Vorgehen siehe nächste Seite).
Das Kamerawerkzeug
Perspektiven in ArchiCAD
Mit dem Kamerawerkzeug können präzise Perspektiven definiert werden. Ein wesentlicher Aspekt in der Visualisierung ist die Wahl eines geeigneten Standortes...
Vorgehen:
- Kamerawerkzeug im Werkzeugkasten einmal anklicken
- Mit der Maus (wie nebenan abgebildet) von oben rechts nach unten links im Wohnbereich eine Kamera zeichnen
- Erster Klick ist der Kamera-Standort, zweiter Klick definiert die Blickrichtung
- Mit dem Pfeilwerkzeug Kamera aktivieren und mit Rechtsklick Auswahl/Markierungsrahmen in 3D anzeigen, damit die ausgewählte Kamera für das 3D-Fenster relevant ist
Perspektiven mit Markierungsrahmen
Mit dem Markierungsrahmenwerkzeug (siehe weiter oben) können Sie auch für Perspektiven Bauteile im 3D-Fenster eingrenzen.
- Setzen Sie einfach im Grundriss einen Markierungsrahmen und öffnen anschliessend mit Rechtsklick Auswahl/Markierungsrahmen in 3D anzeigen das 3D-Fenster.
- Beachten Sie den Unterschied im Infofenster zwischen dem dünnen (=geschossweisen) und dem dicken (=geschossübergreifenden) Markierungsrahmen.
Bei aktivierter Kamera lässt sich mit einem Doppelklick auf das Kamerawerkzeug die Perspektive individuell einstellen. Zum Beispiel den Blickwinkel auf 90° erhöhen.
Wenn Sie den Ausschnitt im 3D-Fenster verschieben (mit SHIFT+Klick), kann die neue Perspektive auf die Kamera übertragen werden. Machen Sie im Navigator einen Rechtsklick auf die Kamera und wählen Sie Aktuelle Einstellungen für Kamera übernehmen.
Die Position wird im Grundriss folglich ebenfalls korrigiert.
Visualisierung
Oberflächen und Photorealistik
ArchiCAD bietet Ihnen interessante Visualisierungsmöglichkeiten, um Ihre architektonischen Ideen der Bauherrschaft zu kommunizieren...
Sie können direkt im 3D-Fenster mit den Elementen arbeiten. Im Menü 3D blenden Sie den Oberflächenkatalog ein, mit welchem Sie einfach Materialien von Objekten im 3D-Fenster überschreiben können.
- Wählen Sie ein Material im Oberflächenkatalog aus und klicken Sie dann folgend mit dem Pinsel auf den gewünschten Bereich eines Elements.
Darstellung Photorealistik
Das Bemassungswerkzeug
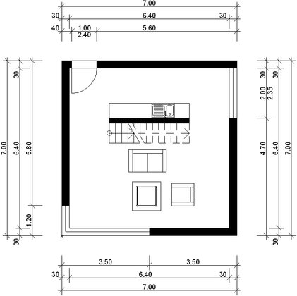
Grundriss bemassen
Eine wichtige Planinformation ist die Bemassung der Bauteile. ArchiCAD bietet für diese Aufgabe ein spezielles Werkzeug, das Bemassungswerkzeug.
Sie können mit dem Bemassungswerkzeug Bauteile entweder manuell bemassen indem Sie die zu bemassenden Punkte anklicken oder (wie in diesem Beispiel gezeigt) vorgängig die zu bemassenden Bauteile aktivieren und dann mit der automatischen Bemassung arbeiten.
Hinweis
Die Bemassung ist intelligent, d.h. wenn sich Bauteile verändern, wird die Bemassung sofort nachgeführt. Alle Pläne sind jederzeit auf dem neuesten Projektstand!
Das Raumflächenwerkzeug
Das Raumflächenwerkzeug ermöglicht Räume nach SIA 416 zu beschriften und später auszuwerten.
Das Berechnungsmenü
Beispiel Fensterlisten
Neben den plangrafischen Möglichkeiten, verfügt ArchiCAD über ein umfassendes Berechnungsmenü. Hier lassen sich jederzeit Element- und Flächenlisten erzeugen.
Alle wichtigen Elementinformationen sind in ArchiCAD abrufbar. Im Berechnungsmenü können diese Listen auch individuell eingestellt werden.
Layout
In diesem Schritt werden Sie noch mit wenigen Klicks eine Dokumentation Ihrer gezeichneten Pläne erstellen und diese als PDF speichern.
Vorgehen:
Damit Sie später die Dokumentation als PDF ausgeben können, werden Sie zuerst Ihre gezeichneten Pläne layouten. Das Layout ist soweit vorbereitet, dass Sie nur noch Ihre Zeichnungen aus der Ausschnittmappe darauf platzieren müssen. Gehen Sie dafür folgendermassen vor:
- Wechseln Sie im Navigator mit Klick auf das entsprechende Symbol in das Layoutbuch.
- Öffnen Sie hier mit Doppelklick das Layout 1.1 Dokumentation A4 im Ordner 1 Layout. Folglich sehen Sie ein vorbereitetes A4-Blatt, welches auch schon mit Titeln versehen ist.
- Wechseln Sie im Navigator auf das Symbol Ausschnittmappe.
- Öffnen Sie den Ordner Layout. Markieren Sie da die beiden Unterelemente Geschosse & Schnitte und ziehen Sie diese mit drag&drop auf Ihr Layout (Elemente mit der Maustaste "packen", rüberziehen über das A4-Layout und da wieder "loslassen")
Sie haben die Möglichkeit im Navigator die Suchfunktion zu verwenden.
Hinweis
In der Demoversion ist es nicht möglich zu speichern.
Herzlichen Glückwunsch!
Sie sind nun am Ende des ArchiCAD kennen lernen Seminar angelangt. In kurzer Zeit konnten Sie die wichtigsten Werkzeuge, einige Arbeitsmethoden und die ArchiCAD Philosophie an einem kleinen Beispiel anwenden. Für Fragen und weitere Informationen steht Ihnen das ArchiCAD-Team gerne zur Verfügung.